pokud nekomu prijde, ze alarm v kufru moc hlasite nehouka (nebo mate nekoho, komu jste sirenu venovali

), tak u fiesty bohuzel nefunguje stejna vec jako u mondea mk4 nebo focuse mk3, tj. ze prepnete alarm na typ "thatcham" a houka se klaksonem ... nezbyva tedy nez auto osadit bateriovou sirenou (dil AV2T-19G229-BB)
nevim, na kolik je pouzitelna samotna sirena z jinych typu fordu, ale drzak je (podle forda) soucasti sireny a tak se neni ceho chytit
bateriova sirena se dava nad prave predni kolo, kde jsou pripravene montazni otvory: jedne kulaty pro zachyceni ocka a dva ctvercove pro umisteni plastovych matek (finis 1681380 nebo levnejsi 1698157)
fotka mista
vyslednou fotku nemam, protoze jsem napoprve mel jiny typ plastovych matek, ktere tam nedrzely ... a podruhe jsem uz podbeh nesundaval a sirenu jsem osadil pri sundanem prednim narazniku jako gynekolog
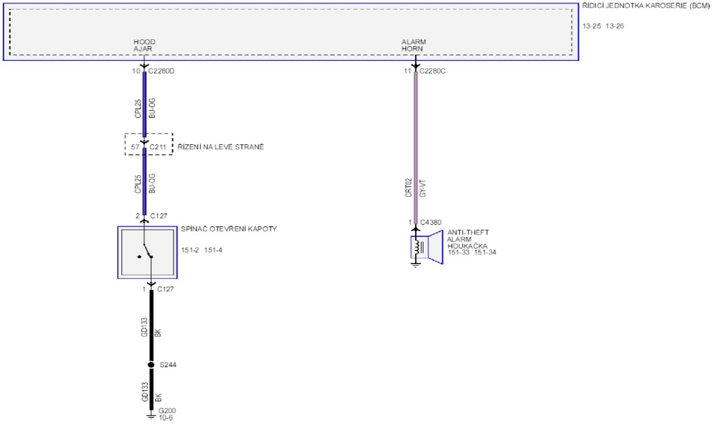
zapojeni sireny
- kostra kdekoli v motorovem prostoru (jedna je za autobaterii, blizsi pod pravym svetlometem)
- napajeni z pojistkovnice v motorovem prostoru: F35 urcite nebude pripravena, ale da se vzit z vedlejsi F32 (klakson)
- sbernice vede pres konektor C211 (jako signal od kapoty) na BCM do sediveho konektoru na pin 24 (stejny pro ultrazvuky
viewtopic.php?t=53261 a couvaci kameru
viewtopic.php?t=53994)
... a nezapomenout prepnout diagnostikou typ alarmu na bateriovy
